Самсоненко Юрій

Самсоненко Юрій

Спеціаліст з продажу квартир
Київ

Самсоненко Юрій

Спеціаліст з продажу квартир
Київ
Верифікований профіль
Silver partner
Сертифікат
АФНУ
9
Років досвіду
2
Верифіковані рекомендації
9
Років на сайті
Рекомендувати
Активних оголошень
3
Ексклюзивних об'єктів
0
Рекламна активність
2376
Останній візит на сайт
вчора
В нерухомості Києва я з 2016 року.

Маю великий досвід купівлі і продажу квартир у новобудовах Києва (дериватив, перепоступка і т.д.).
Та на вторинному ринку нерухомості.

Завжди знаходжу моїм клієнтам інвестиційно привабливі обʼєкти нерухомості. Дзвоніть - буду радий співпраці!

Портфоліо реалізованих об’єктів (38)

  • здано
    18 500 грн/міс

    Європейського Союзу просп. (Правди), 47

    1 кімната
    41 / 14 / 17 м²
    поверх 6 з 25
    2 р. 3 міс. тому
    Оренда! ЖК Варшавский Плюс вул. Виговського, 40/12 (Гречко, Проспект Правди) Абсолютно нова квартира, в якій раніше НЕ проживали! Виконанано якісний євроремонт. НЕвисокий 6й поверх. Загальна площа: 41 м2: - кухня-вітальня 17 м2: встановлено: інверторний холодильник, варильна поверхня, духова шафа, витяжка, мікрохвильова піч, посудомийна машина. Є новий посуд. Напідлзі плитка. У гостьовій зоні кухні є : двоспальний розкладний диван, ТВ 47'', кондиціонер; - окрема спальня, 14 м2 з великим ліжком, шафою-купе кондиціонером та письмовим столом (маст-хев у кого віддалена сфера діяльності). На підлозі ламінат; - сан.вузол з душовою кабінкою, пральною машиною та бойлером на 80л. У парадному 3...
  • продано
    77 000 $
    1 116 $/м²

    Європейського Союзу просп. (Правди), 45

    БЕЗ КОМІСІЇ ПЕРЕУСТУПКА ТЦ Retroville
    ЖК Варшавський-2
    2 кімнати
    69 / 31 / 22 м²
    поверх 4 з 16
    2 р. 2 міс. тому
    Продаж! ЖК Варшавский 2 Будинок 14.2 вже з ключами! Ремонти йдуть повним ходом! Вул. О. Олеся/ Проспект Правди Квартира розташована на 4му поверсі. Не кутова. Не біля ліфтової шахти, а саме всередині будинку. Тепла! Фото РеаЛьнІ!! Квартира в наявності! Вдале планування: - кухня-вітальня площею 21, 21 м2! - дві роздільні спальні: 13, 13 м2 та 17, 23 м2; - балкон (не лоджія), на який можна вийти як з кухні так і зі спальні; - два сан.вузли. При бажанні дану квартиру можна перепланувати на ваш розсуд або поділити на смарти! У будинку власна котельня. Цілодобова охорона та відеоспосереження. Власна обслуговуюча компанія. Внутрішній двір зачинений від сторонніх. 200 метрів до ТРЦ Retroville...
  • здано
    22 000 грн/міс

    Європейського Союзу просп. (Правди), 45

    2 кімнати
    44 / 15 / 19 м²
    поверх 5 з 25
    2 р. 4 міс. тому
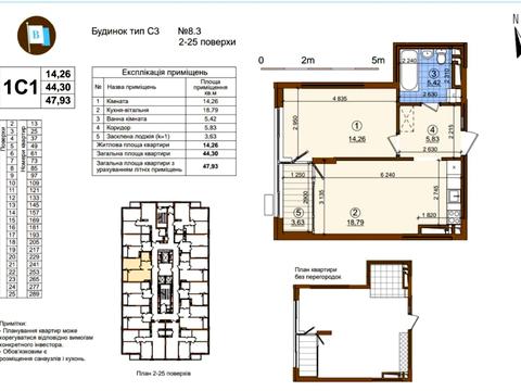
    Оренда ! Довгостроково (від 6 місяців) ЖК Варшавський Мікрорайон (не Плюс, не В2) Проспект Правди / вул. О.Олеся Будинок 8.3 Виконано якісний дизайнерський ремонт для себе! Використано лише якісні матеріали. В квартирі НЕ ПРОЖИВАЛИ раніше!! Всі меблі та техніка абсолютно нові! Кухня-вітальня 19 м2, встановлено: електрична плита, духова шафа, витяжка, посудомийна машина, вбудований холодильник, мікрохвильовка, електрочайник. Встановлено кондиціонер. Підлога з підігрівом. Є посуд. У гостьовій зоні кухні: ТВ 42'', розкладний двоспальний диван. Спальня 15 м2, встановлено: велике ліжко з ортопедичним матрацом, велика шафа-купе з вуликою кількістю полиць. На підлозі ламінат. Є нові простирадл...
  • продано
    81 000 $
    1 179 $/м²

    Івана Виговського вул. (Маршала Гречка), 44

    БЕЗ КОМІСІЇ ПЕРЕУСТУПКА ТЦ Retroville
    ЖК Варшавський Плюс
    2 кімнати
    69 / 24 / 22 м²
    поверх 5 з 25
    2 р. 5 міс. тому
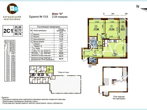
    Продаж! ЖК Варшавський Плюс. Будинок 13.8 Введений у експлуатацію ФОТО реальні. Є інші квартири у цьому ЖК!! Вул. Виговського, 44 (Проспект Правди / Гречко) У будинку активно йдуть ремонтні роботи. Право власності у цьому будинку вже оформлюється!! Квартира розташована на п'ятому поверсі! Має планування, що дозволить вам втілити найкращі дизайнерські рішення: - кухня-вітальня, площею 21. 88 м2з панорамним вікном у двір та виходом на засклену лоджію , площею 6. 13 м2; - спальня 1 , площею 13.35 м2 з виходом на лоджію. Лоджія , доречі, має 2 вікна у різні сторони; - спальня 2 , площею 11. 03 м2; - 2 роздільні сан. вузли; та окрему гардеробну, яку можна збільшити за рахунок одного з сан. ву...
  • продано
    81 999 $
    2 000 $/м²

    Європейського Союзу просп. (Правди), 47

    БЕЗ КОМІСІЇ ПЕРЕУСТУПКА Виноградар
    ЖК Варшавський Плюс
    1 кімната
    41 / 10 / 18 м²
    поверх 12 з 25
    2 р. 5 міс. тому
    Продаж! ЖК Варшавский Плюс вул. Виговського, 42 (поряд Проспект Правди, Гонгадзе) Будинок 13.9 введений у експлуатацію! Унікальна можливість придбати нову квартиру з "чистою аурою" ! Продаж БЕЗ податків. Ви станете першими власниками по документах. Квартира площею 41 м2, складається з: - кухня-вітальня (18 м2) - індукційна плита, духова шафа, холодильник з морозильною камерою (все виробництва Gorenje), посудомийна машина, дизайнерська мийка з нержавіючої сталі Kroner; - гостьова зона з розкладним двоспальним диваном; - окрема спальня з великим ліжком; - засклена лоджія з кухні; - сан.вузол з теплою підлогою, дизайнерською мийкою зі штучного каменю, встановленною ванною. Є бойлер та праль...
  • продано
    87 000 $
    1 278 $/м²

    Європейського Союзу просп. (Правди), 43-А

    2 кімнати
    68 / 30 / 18 м²
    поверх 8 з 13
    2 р. 5 міс. тому
    Продаж! Квартира з правом власності (НЕ переуступка) ЖК Варшавський Мікрорайон ( не В2, Не В+ ) Будинок введений у 2018 році. Повністю заселений! Адреса: Проспект Правди, 43А Квартира у стані "від забудовника". Встановлено : металеві вхідні двері, радіатори опалення з регуляторами, 2-камерні вікна Rehau, лічильники, заведено електрику до щитка. Розташована всередині будинку - не кутова. Поверх - восьмий! Вікна у власний зачинений від сторонніх двір! Планування: - кухня-вітальня (18.3 м2) з виходом на засклену лоджію (4 м2); - дві роздільні спальні - 15.5 м2 і 14.7 м2; - великий коридор, де можна встановити велику шафу-купе. Бонус: є готовий дизайн-проект з кількома варіантами перепланува...
  • продано
    83 500 $
    2 037 $/м²

    Європейського Союзу просп. (Правди), 41-А

    1 кімната
    41 / 15 / 15 м²
    поверх 16 з 25
    2 р. 8 міс. тому
    Продаж! 1к квартира "євродвушка" у ЖК Варшавський Мікрорайон Проспект Правди, 41а Квартира з правом власності (підходить під Є-Оселя) Новий будинок. Якісний ремонт, де вже все продумано і реалізовано так, що вам лише достатньо занести валізи з вашими речами і все. Все готово для комфортного проживання! - Кухня-вітальня, площею 14 м2 - встановлено: вбудований холодильник, посудомийну машину, витяжку, духову шафу, індукційну варильну поверхню та розкладний двомісний диван. Завдяки панорамному вікну из заниженім підвіконням та захидній стороні - завжди багато світла. - Спальня 15 м2 у якій : велика шафа-купе з купою поличок, містке ліжко, кондиціонер. - Сан.вузол : встановлено ванну,...
  • продано
    70 500 $
    993 $/м²

    Миколи Закревського вул., 101-В

    БЕЗ КОМІСІЇ єОселя Троєщина ЖК Вигурівщина-20
    2 кімнати
    71 / 30 / 15 м²
    поверх 15 з 25
    2 р. 9 міс. тому
    Продаж! 2х кімнатна квартира з Правом Власності (не переуступка) ЖК Вигурівщина-20 Вул. Закревського , 101В Будинок введений в експлуатацію. Сусіди вже живуть и активно роблять ремонти. Квартира видова. Відкривається чудова панорама на луг. Ніякого шуму від дороги. Немає ефекту "вікна у вікна". Виконана чистова обробка: стяжка на підлозі, фінішна штукатурка на стінах, розведена електропроводка по всій квартирі. Встановлено двокамерні склопакети, радіатори опалення, двозонні лічильники електроенергії. Площа: * кухня-вітальня - 14.6 м² ( з виходом на заслену лоджію ) * спальня1 - 18.1 м² * спальня2 - 12.1 м² * сан.вузол1 - 3.9 м² * сан.вузол2 - 1.9 м² В будинку три ліфти OTIS. Конс...
  • продано
    50 000 $
    1 163 $/м²

    Європейського Союзу просп. (Правди), 47

    1 кімната
    43 / 14 / 17 м²
    поверх 24 з 24
    2 р. 9 міс. тому
    Будинок введений у експлуатацію. Ключі на угоді!!! ЖК Варшавський Плюс Будинок 13.6 Проспект Правди / вул. Виговського Видова квартира з видом у власний двір. Західна сторона Одне з кращих планувань у всьому ЖК: - кухня-вітальня (16,5 м2), з виходом на засклену лоджію (4,5 м2). За рахунок лоджії площа кухні складатиме 21 м2; - окрема спальня 14 м2 - просторий сан.вузол - дві мокрі точки для різних варіантів перепланування У квартирі встановлено: двокамерні вікна Rehau, радіатори опалення, броньовані вхідні двері, лічильники. У будинку власна котельня. Цілодобова охорона, відеоспостереження. Внутрішній двір зачинений від сторонніх. Власна обслуговуюча компанія. 100 метрів до ТРЦ Ретрові...
  • продано
    70 000 $
    1 014 $/м²

    Європейського Союзу просп. (Правди), 47

    2 кімнати
    69 / 25 / 20 м²
    поверх 14 з 25
    2 р. 11 міс. тому
    Будинок введений в експлуатацію. Шановні покупці!! Квартира у наявності та РеальНа!!! ЖК Варшавський Плюс Будинок 13.8 Проспект Правди / вул. Виговського 2к квартира площею 69 м2: Поверх 14/25 - кухня-вітальня площею 20 м2; - дві роздільні спальні 12 м2 і 13,5 м2; - два роздільні сан.вузли; - лоджія площею 6 м2, на яку можна потрапити з кухні та великої спальні; + родзинка квартири її планування. Вікна квартири виходять у власний двір. Орієнтація на дві сторони - схід та південь. Тобто сонце переміщатиметься увесь день з кімнати у кімнату! У будинку власна котельня (економія на комунальних, так як є теплолічильник) Цілодобова охорона та відеоспостереження. Власний двір з дитячими май...
  • продано
    55 000 $
    1 222 $/м²

    Павла Тичини просп., 13

    БЕЗ КОМІСІЇ
    2 кімнати
    45 / 28 / 8 м²
    поверх 5 з 16
    3 р. 5 міс. тому
    Терміновий продаж! 2к квартира Вул. Тичини, 13 ( БПС ) Поверх 5/16 Площа: 45.2/17.5/10.5/7.9 В парадному конс'єрж. Стан впевнено житловий, але потребує косметики. Капітальний ремонт на кухні та сан.вузлах. Встановлено фільтр питної води на кухні. 2 засклені балкони, в усіх кімнатах м/п вікна. Металеві вхідні двері З техніки: місткий холодильник, посудомийна машина, газова плита з духовкою, витяжка, 2 кондиціонери, пральна машина. В спальнях шафи з великою кількістю поличок, в коридорі шафа-купе. Вид у двір. Ціна 55000 у.о або краща пропозиція. (ключі в мене) Без %. СПП Ключі в день угоди. Є відеоогляд!
  • продано
    38 000 $
    1 056 $/м²

    Європейського Союзу просп. (Правди), 47

    1 кімната
    36 / 12 / 15 м²
    поверх 7 з 25
    3 р. 7 міс. тому
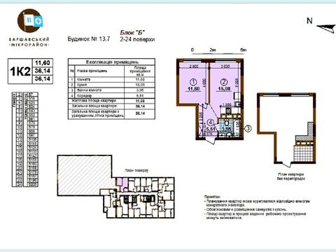
    Продаж! Найвигідніша -- без перебільшень --ціна у даному ЖК. 1к квартира в ЖК Варшавський плюс. Реальна 100%. Проспект Правди/вул. Виговського Будинок 13.7 введення у експлуатацію - осінь цього року. Перші три будинки (13.1, 13.2, 13.3 вже з ключами) Будинки з 13.4 по 13.9 також у експлуатації. При загальній невеликій площі (36 м2), квартира достатньо простора: - кухня-вітальня 15 м2, де чудово поміститься сама, власне, кухня та зона відпочинку з диваном і ТВ; - окрема спальня 12 м2; - сан.вузол, площею 4 м2, де можна розташувати ванну; - у коридорі є місце для місткої шафи купе. Вікна у двір ЖК на схід. У будинку власна котельня. Внутрішній двір зачинено від сторонніх. До ТРЦ Ретрові...
  • продано
    69 000 $
    1 380 $/м²

    Юрія Кондратюка вул., 5

    БЕЗ КОМІСІЇ ЖК на Кондратюка
    1 кімната
    50 / 16 / 22 м²
    поверх 17 з 25
    3 р. 9 міс. тому
    В продажі 1 кімнатна квартира у ЖК Міністерський вул. Кондратюка, 5 Будинок введений у експлуатацію в 2014 році Повністю заселений. Квартира з якісним сучасним євроремонтом. Повністю обладнана усією необхідною технікою та меблями для вашого комфортного проживання. Кухня-вітальня загальною площею 22 м2, встановлено: варочна поверхня, духова шафа Indesit, холодильник Sharp, кондиціонер C&H, смарт ТV. Два варіанти освітлення. Також з кухні вихід на простору лоджію, на якій є розетка й освітлення (можна використовувати як кабінет) З лоджії відкривається чудовий краєвид як в бік Києва, так і на Вишгород. В спальні велике ліжко, містка шафа для усіх речей, місткий комод. На підлозі ламінат. В...
  • здано
    7 500 грн/міс

    Сім'ї Кульженків вул. (Петра Дегтяренка), 6

    1 кімната
    38 / 15 / 10 м²
    поверх 17 з 24
    3 р. 11 міс. тому
    Пропонується в оренду 1к квартира в новому ЖК Яскравий. Оболонський район, Мінський Масив вул. Сім'ї Кульженків, 6 (поряд Полярна, Кондратюка, Калнишевського) До метро Мінська і метро Героїв Дніпра 12 хвилин транспортом. Зупинка в 300 метрах від дому, багато маршруток , автобус 99, тролейбуси 6, 18, 33. Біля будинку величезний супермаркет Сільпо і побутово-промисловий ринок. Квартира з новим ремонтом, є вся необхідна для проживання техніка: - бойлер, - пральна машинка, - кондиціонер. Звичайно ж і плита, духовка, витяжка та вбудований холодильник. Вікна у двір житлового комплексу. В комплесі кав'ярні, магазини, тощо.. Довгостроково. Вартість 7500 грн/міс + комісія АН Комунальні сплачуютьс...
  • продано
    87 000 $
    1 048 $/м²

    Європейського Союзу просп. (Правди), 45-Б

    3 кімнати
    83 / 40 / 20 м²
    поверх 24 з 25
    5 р. 3 міс. тому
    В продаже шикарная! НЕ Замануха!! Реальная! 3к квартира в жк Варшавский микрорайон (проспект Правды) 8я очередь, дом 8.3 Введение дома в эксплуатацию в 4м квартале 2021 года. На ремонт зайдёте в марте 2022 года. Квартира с отличнейшим видом в сторону Оболони. Планировка двухсторонняя: сторона юго-восток 3 раздельные спальни (12, 14, и 15 м2), кухня 20 м2 и в прихожей есть ниша для гардеробной. В доме собственная котельная, 3 лифта. Ухоженная придомовая территория с озеленением. ТРЦ Ретровиль в пяти минутах ходьбы В 2022 году запустят две станции метро. Продажа в центральном офисе Stolitsa group Звоните
  • продано
    60 000 $
    1 250 $/м²

    Європейського Союзу просп. (Правди), 45-А

    1 кімната
    48 / 15 / 18 м²
    поверх 24 з 25
    4 р. 10 міс. тому
    Продам евродвушку (48 м2) в ЖК Варшавский Микрорайон 8я очередь дом С Квартира с отличными видовыми качествами в сторону ТРЦ Ретровиль. Кухня-гостиная 19 м2, площадь которой можно увеличить на 4 м2 за счёт выноса лоджии, спальня 14, 5 м2, с/у 5, 5 м2. Установлены 2х камерные окна Rehau, отопительные радиаторы, счётчики, электричество до щитка, бронедверь. В парадном 3 лифта, консьерж, видеонаблюдение. В доме своя котельная. Во дворе детская и спортивная площадки, закрытые от автомобилей и посторонних. В комплексе множество магазинов, кофейни, Новая Почта, Novus. В 2022м году будет открыта станция метро. Продажа по переуступке в центральном офисе застройщика. Звоните!
  • здано
    6 500 грн/міс

    Симона Петлюри вул. (Черняховського), 36-Б

    1 кімната
    42 / 17 / 11 м²
    поверх 2 з 25
    5 р. 1 міс. тому
    Предлагается в долгосрочную аренду 1к квартира в новом доме - Бровары, ул. Петлюры, 36Б Только для молодой семейной пары! Дом расположен в 200 метрах от ТРЦ Терминал (супермаркет, кинотеатр, боулинг, бильярд, каток, картинг ..) В 100 метрах остановки маршруток по городу и в Киев. Во дворе дома своя детская площадка, места для парковки. В квартире есть всё необходимое для жизни: - 2 полноценных спальных места (диван и кровать) - холодильник, плита с вытяжкой, телевизор - мебель - стиральная машина, бойлер, счётчики - большой балкон БеЗ ЖивОтных!! Оплата за первый месяц и залоговая сумма в размере месячной аренды сразу. Агентство. Звоните только с 16.00 до 19.00! Юрий
Повернутись до всіх пропозицій
Оберіть спосіб підтвердження
Щоб вашу рекомендацію було зараховано, підтвердіть свою особистість
* Особисті дані не відображатимуться на сайті та слугуватимуть лише для підтвердження особистості.
Як верифікуватись через Дію?
Зчитайте QR-код сканером у застосунку Дія й підтвердьте авторизацію Дія.Підписом
QR-код буде дійсний ще 02:00
Як верифікуватись через Bankid?
Верифікація BankID відкриється у новому вікні. Якщо сторінка верифікації не відкрилася, вікно було заблоковане вашим браузером.
Щоб дозволити відкриття вікна, виконайте такі кроки:

1. Перевірте адресний рядок браузера на повідомлення про помилку або піктограму блокування. Натисніть на нього.
2. Якщо у вас встановлено блокувальник спливаючих вікон, тимчасово відключіть його для цього сайту.
3. Перевірте налаштування вашого браузера і переконайтеся, що блокування спливаючих вікон вимкнено або налаштовано на дозвіл відкриття цього вікна.

Якщо проблема залишається невирішеною, зверніться до нашої служби підтримки.
Як верифікуватись через Дію?
Верифікація Дія відкриється у новому вікні. Якщо сторінка верифікації не відкрилася, вікно було заблоковане вашим браузером.
Щоб дозволити відкриття вікна, виконайте такі кроки:

1. Перевірте адресний рядок браузера на повідомлення про помилку або піктограму блокування. Натисніть на нього.
2. Якщо у вас встановлено блокувальник спливаючих вікон, тимчасово відключіть його для цього сайту.
3. Перевірте налаштування вашого браузера і переконайтеся, що блокування спливаючих вікон вимкнено або налаштовано на дозвіл відкриття цього вікна.

Якщо проблема залишається невирішеною, зверніться до нашої служби підтримки.
Вітаємо!
Рекомендацію зараховано!
Незабаром рекомендація зʼявиться на сторінці рієлтора.
Рекомендацію не зараховано.
Ви вже залишали рекомендацію даному рієлтору.